
好的设计就像一件合身的衣服,不张扬却让人舒服。这个家不是摆给人看的样板房,而是能让人卸下疲惫、真正放松的地方。
大家好,我是《意大利室内设计中文版+》的主理人意公子,专为设计师分享室内设计创新案例。我们致力于为设计师提供多元的设计美学,也让世界看到我们的设计实力。
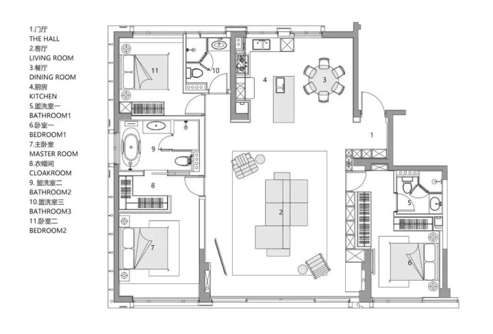
温州这套150㎡的房子原本是千篇一律的精装房。设计师像整理衣柜一样,拆掉没用的隔断,让客厅、餐厅连成一片,全家人在哪都能互相看见。

客厅故意空出一大片白墙,阳光照进来的时候特别敞亮。沙发不靠墙放,孩子能绕着跑圈,大人换座位也不用挤来挤去 —— 日子就该这么轻松。
A large expanse of white wall is intentionally left empty in the living room, which becomes particularly bright when sunlight streams in. The sofa is not placed against the wall, allowing children to run around it in circles, and adults don't have to jostle when changing seats — life should be this relaxed.



餐厅和客厅直接连着大阳台,现在整个屋子亮堂堂的。设计师把原来挡在中间的墙都敲掉了,现在从厨房端菜到阳台晒太阳,一路畅通无阻,转身就能看见家人在哪。
The dining room and living room are directly connected to a large balcony, making the entire house bright now. The designer knocked down the original wall that blocked the middle area; now, you can carry dishes from the kitchen to the balcony to enjoy the sun without any obstacles, and you can see where your family is with just a turn around.




公共区域采用三种主材的精心搭配:意大利进口的深红色纳帕皮沙发,土耳其黑白纹理天然大理石茶几,搭配德国橡木实木储物柜。三种材质的触感对比形成丰富的层次感,在自然光下展现出细腻的质感变化。
The public area adopts a careful combination of three main materials: a deep red Nappa leather sofa imported from Italy, a natural marble coffee table with black and white textures from Turkey, and a solid wood storage cabinet made of German oak. The tactile contrast of the three materials creates a rich sense of hierarchy, showing delicate texture changes under natural light.



本案餐厅采用极简设计语言:白色人造石岛台与线性吊灯形成视觉呼应,深色胡桃木餐桌选用 FSC 认证木材,椅背弧度经过人体工学优化,在保证功能性的同时营造出温馨的用餐环境。
The dining room of this project adopts a minimalist design language: the white artificial stone island counter echoes visually with the linear chandelier. The dark walnut dining table is made of FSC-certified wood, and the curvature of the chair back is optimized based on ergonomics, creating a warm dining environment while ensuring functionality.





这间卧室的设计就是为了让人好好休息。黑白搭配的家具线条简单干净,没有多余的装饰。早上阳光照进来时,躺在柔软的床上,整个人都能放松下来,感觉特别舒服。
This bedroom is designed for people to rest well. The black-and-white furniture features simple and clean lines without any redundant decorations. When the sun shines in the morning, lying on the soft bed, you can fully relax and feel extremely comfortable.





